
Um ein besseres Gefühl für die Räume zu bekommen, findet ihr hier verschiedene Raumpläne zu den unterschiedlichen Bestuhlungsformen und Maximalkapazitäten. Zudem haben wir einige Bilder zu den entsprechenden Settings verlinkt.
Bei Bedarf erstellen wir gerne eine individuelle Planung.
Quadratmeter
Stehend
Parlament
Reihen
U-Form
Tafel
Gala/Bankett
Um die optimale Flexibilität zu bieten, ist unser gesamtes Mobiliar mobil. Das bedeutet, Ihr könnt die Location nach euren Wünschen umstellen und so einrichten, wie es für euch am besten passt. Lasst eurer Kreativität freien Lauf und fühlt euch wie zu Hause.
Das Food-&-Beverage-Konzept wird von einem unserer Cateringpartner bereitgestellt. Gemeinsam könnt ihr euer perfektes Menü und passende Getränke auswählen – abgestimmt auf euren Stil und eure Gäste. So entsteht ein stimmiges Gesamtkonzept, das kulinarisch genau zu eurem Event passt.
Unsere Eventlocation in Frankfurt verfügt über einen modernen, vollausgestatteten exklusiv nutzbaren Raum, mit großartigem Blick auf die Skyline Frankfurts. Durch den Flur, welcher ebenfalls nur exklusiv genutzt wird, kommt man auf unsere 100qm große Dachterrasse, welche euch ebenfalls zur Verfügung steht.
Die Location Place to be im Westend Tower ist für 50 Personen (sitzend) bzw. maximal 75 Personen (stehend) ausgelegt.
Leider Nein. Wir haben drei Personenaufzüge, welche jeweils 1.000 Kg Tragkraft haben.
Die Fahrstühle haben folgende Maße: Breite 88 x Tiefe 200 x Höhe 200
Unsere Location, befindet sich auf dem Grüneburgweg in Frankfurt.
Eine U-Bahnstation „Grüneburgweg“ befindet sich ganz in der Nähe (ca. 6 min Fußweg) unserer Location.
Die Station liegt unter der Eschersheimer Landstraße etwas nördlich der
Kreuzung Grüneburgweg/Fichardstraße in Höhe Gervinusstraße auf der
Grenze zwischen Nord- und Westend und wird von den U-Bahn-Linien U1,
U2,U3 und U8 angefahren.
Es gibt zahlreiche Parkgelegenheiten rund um die Location. Vor allem ab dem späten Nachmittag lichtet sich die Parksituation.
Ganz in der Nähe, befindet sich das öffentliche Parkhaus „Tiefgarage Opernturm“ an der Bockenheimer Anlage 47.
Zu unserer Location beträgt der Fußweg 7min.
Ein weiteres Parkhaus „Contipark-Parkhaus Turmcenter“ auf der Querstraße 7-9 befindet sich ebenfalls 7-8 min (Fußweg) in der Nähe unserer Location.
Weitere öffentliche Parkhäuser in der Nähe:
- Q-Park Opernplatz, Hochstraße 42 (8 min Fußweg)
- Parkhaus Alte Oper, Opernplatz 1 (9min Fußweg)
Generell haben wir keine festen Veranstaltungszeiten. Für Abendveranstaltung setzen wir eine erste „Richtlinie“ um 03:00 Uhr nachts. Danach wird pro Stunde ein separater Aufpreis erheben.
Ja, wir haben in der gesamten Location mehrere Access Points verbaut, sodass sichergestellt ist, dass Ihr überall erreichbar seid. Übrigens ist unser WLAN für Euch kostenfrei.
Ja, wir können jedes Fenster separat mit Sonnenrollos verdunkeln. Diese können händisch nach Bedarf genutzt werden.
Wir arbeiten mit unserem erfahrenen Partner, Goose Gourmet zusammen, welcher euch ein abgerundetes Food-Konzept bieten kann.
Ihr habt jedoch auch die Möglichkeit nach Absprache einen eigenen Catering Partner zu wählen. Hier ist es wichtig, dass Service-Personal mit inkludiert sein muss und der Caterer alles benötigte Equipment selber mitbringt. Gerne dürft Ihr bestimmte Getränke wie z.B Weine mitbringen. Hier wird allerdings ein Korkgeld berechnet.
Eine Beschilderung im Eingangsbereich oder vor den Aufzügen, durch Roll-Ups oder ähnlichem, ist gestattet. Im Flur auf der Fläche kann jedoch gerne eine Beschilderung vorgenommen werden.
Ja, wir können gerne einen Techniker empfehlen, wir sind aber nicht gebunden.
Ja, im Erdgeschoss gibt es ein behindertengerechtes WC und der Zugang verfügt über eine Rampe. Lediglich der Zugang zur Dachterrasse ist nicht barrierefrei.

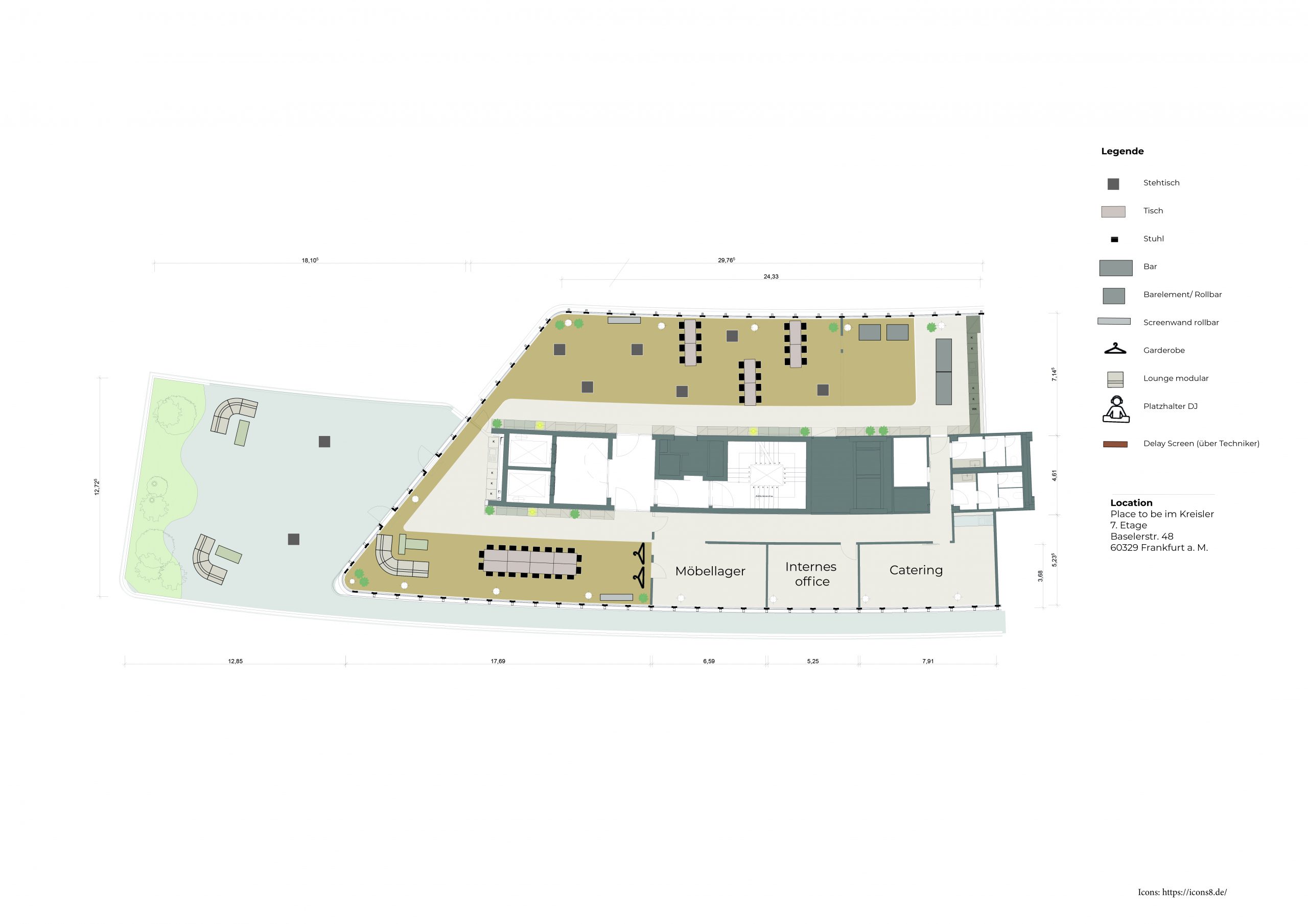
Um ein besseres Gefühl für die Räume zu bekommen, findet ihr hier verschiedene Raumpläne zu den unterschiedlichen Bestuhlungsformen und Maximalkapazitäten. Zudem haben wir einige Bilder zu den entsprechenden Settings verlinkt.
Bei Bedarf erstellen wir gerne eine individuelle Planung.
Um die optimale Flexibilität zu bieten, ist unser gesamtes Mobiliar mobil. Das bedeutet, Ihr könnt die Location nach euren Wünschen umstellen und so einrichten, wie es für euch am besten passt. Lasst eurer Kreativität freien Lauf und fühlt euch wie zu Hause.
Das Food-&-Beverage-Konzept wird von einem unserer Cateringpartner bereitgestellt. Gemeinsam könnt ihr euer perfektes Menü und passende Getränke auswählen – abgestimmt auf euren Stil und eure Gäste. So entsteht ein stimmiges Gesamtkonzept, das kulinarisch genau zu eurem Event passt.
Ja, ihr könnt beide Bereiche einzeln oder gemeinsam buchen. Somit ist für jeden Geldbeutel und für jede Gruppengröße etwas dabei.
Leider Nein. Wir haben drei Personenaufzüge, welche jeweils 1.000 Kg tragen können.
Die Fahrstühle haben folgende Maße: b 88 x l 210 x h 215
Direkt gegenüber befindet sich das Parkhaus am Baseler Platz
Wir besitzen:
150 Stühle,
Tische für bis zu 120 Personen,
zwei Flipcharts,
zwei Pinnwände
Dolby Surround in allen Räumen,
zwei Funkmikrofone,
ein Mischpult,
zwei LED Screens,
Wifi und Loungemöbel. Die vorhandene Deko etc. sind ebenfalls inklusive.
Nein, unsere Location ist ausschließlich bei Veranstaltungen geöffnet – wir wollen das exklusive Ambiente unserer Räumlichkeiten für Veranstaltungen vorbehalten.
Ja, wir können jede Fensterseite zur Sonnenseite separat mit Sonnenrollos verdunkeln. Bei direkter Sonneneinstrahlung wird dies auch automatisch vorgenommen.
Ja, wir haben in der gesamten Location mehrere Access Points verbaut, sodass sichergestellt ist, dass Ihr überall erreichbar seid. Übrigens ist unser WLAN für Euch kostenfrei.
Generell haben wir keine festen Veranstaltungszeiten. Für Abendveranstaltung setzen wir eine erste „Richtlinie“ um 03:00 Uhr nachts. Hiernach müssten wir pro Stunde einen separaten Aufpreis erheben.
Ja, dasPlace to be im Kreisler lässt sich multifunktional und zeitgleich bespielen. Die Dachterrasse kann jedoch nur über die Manhattan Lounge betreten werden. Aus diesem Grund können keine zwei Veranstaltungen parallel stattfinden, die Räume aber dennoch separat gebucht werden.
Das Food & Beverage Konzept kann von einem unserer Cateringpartner bereitgestellt werden. Gemeinsam könnt ihr euer perfektes Menü und passende Getränke auswählen. Zudem ist es auch möglich, einen eigenen Cateringpartner zu wählen. Dies muss jedoch mit uns abgestimmt werden und die Betreuung durch Service und einen Serviceleiter muss sichergestellt sein. Eine Buchung ohne Betreuung ist leider nicht möglich.
Unsere Tische sind 70cm x 140cm groß.
Natürlich dürft Ihr die Location nach eurem Geschmack dekorieren und nach Möglichkeiten Möbel umstellen. Ob ihr dazu einen gebuchten Dienstleister nutzen wollt oder das lieber in eure eignen Hände nehmt, liegt ganz bei euch. Bei Veränderung der Fläche durch Bekleben, Austausch der Möbel etc., muss die Location nur wieder in den übergebenen Ursprungszustand zurückgesetzt werden.
Erfahrungsbedingt ist die Nutzung von Panzertape oder Klebeband auf dem Boden nicht gestattet.
Eine Beschilderung im Eingangsbereich und in den Fahrstühlen durch Roll-ups oder ähnliches, ist gestattet.
Unser W-Lan hat folgende Geschwindigkeit:
Download 250 Mbit
Upload 30 Mbit
Unsere Luft zirkuliert 3 mal pro Stunde.
Zudem haben wir überall Fenster zum Stoßlüften.
Unsere Dachterrasse kann bis 22:00 Uhr gerne als Rückzugsort, für ein BBQ oder freie Trauungen genutzt werden. Das Abspielen von Musik auf unserer Dachterrasse ist leider generell nicht erlaubt.
Aus Rücksichtnahme auf unsere Nachbarn und um die Nachtruhe zu wahren, bitten wir darum, ab 22:00 Uhr die Fenster und Türen geschlossen zu halten. Bei Veranstaltungen mit festlichem Charakter, wie Hochzeiten oder Firmenfeiern, werden die Terrassentür im Partyraum sowie die Tür im Eingangsbereich ab 22:00 Uhr abgeschlossen. Sollte es zu laut werden, behalten wir uns vor, die Türen und Fenster bereits vor 22:00 Uhr zu schließen.
Für Raucher oder Gäste, die etwas frische Luft schnappen möchten, steht die Dachterrasse zur Verfügung. Allerdings ist die Nutzung auf maximal 15 Personen (PAX) beschränkt, und es sollte sich dabei in Zimmerlautstärke unterhalten werden. Der Zugang zur Dachterrasse erfolgt über den Raum, in dem der DJ keine Musik auflegt.